| NIVEAU | PIÈCE | SURFACE |
Appartement
SAINT GILLES CROIX DE VIE (85800)
- 65 m²
- 3 pièce(s)
- 2 chambre(s)
- 77 m²
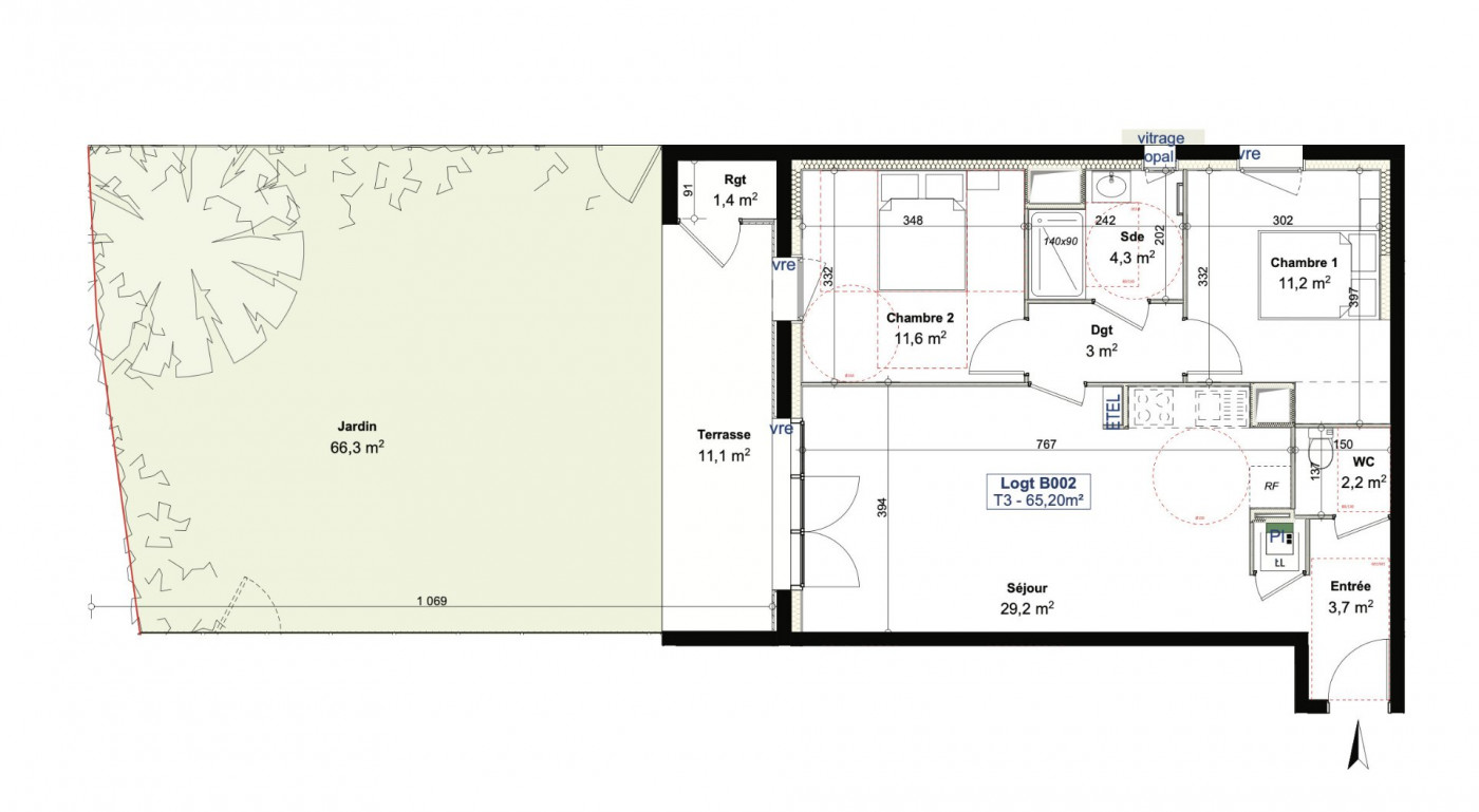
SAINT-GILLES-CROIX-DE-VIE - A 350 m du sentier de la Coulée Verte, 1 km de la Grand Plage et 1,2 km du Quai Rivière, au sein d’une résidence à taille humaine (26 appartements) et placée dans un environnement calme et résidentiel, devenez propriétaire de cette maison / appartement de Type 3 (achèvement programmé pour le 4ème trimestre 2025 – labélisé RT 2012) comprenant sur 65,20 m2 de surface habitable (avec un total de 144 m2 de surface privative) : entrée avec placard (3,70 m2), WC indépendant (2,20 m2), salon/séjour avec cuisine ouverte (29,20 m2) et aménagée, dégagement vers coin nuit (3 m2), deux chambres (11,20 et 11,60 m2), salle d’eau de 4,30 m2 (douche en 140 x 90, meuble vasque et sèche-serviettes) placée entre les chambres. Terrasse couverte de 11,10 m2, avec accès direct à un espace de rangement fermé (1,40 m2), et jardin engazonné de 66,30 m2. Exposition Nord-Ouest. En complément : une place de stationnement privative et un local vélos en commun (33,80 m2). Éléments de conforts supplémentaires : chauffage central alimenté par chaudière gaz individuelle à condensation avec thermostat d’ambiance programmable et commande murale, toutes menuiseries PVC à double vitrage et volets roulants motorisés, distribution optimisée évitant une perte d’espace en dégagement, accès sécurisé à la résidence par portail motorisé métallique, fibre optique. Frais de notaire réduits (7 200 € au lieu de 22 400 €, soit une économie de 15 500 €). Achat possible pour résidence principale, secondaire ou locative (éligible au dispositif d’économie d’impôt Pinel ou pouvant également offrir une belle rentabilité en location saisonnière meublée).
Bien soumis au statut juridique de la copropriété. Nb de lot :26.
* Honoraires charge vendeur.
cette annonce à un ami
Veuillez réessayer à nouveau








